Leave a Message

Thank you for your message. I will be in touch with you shortly.

Explore Properties

Property Description

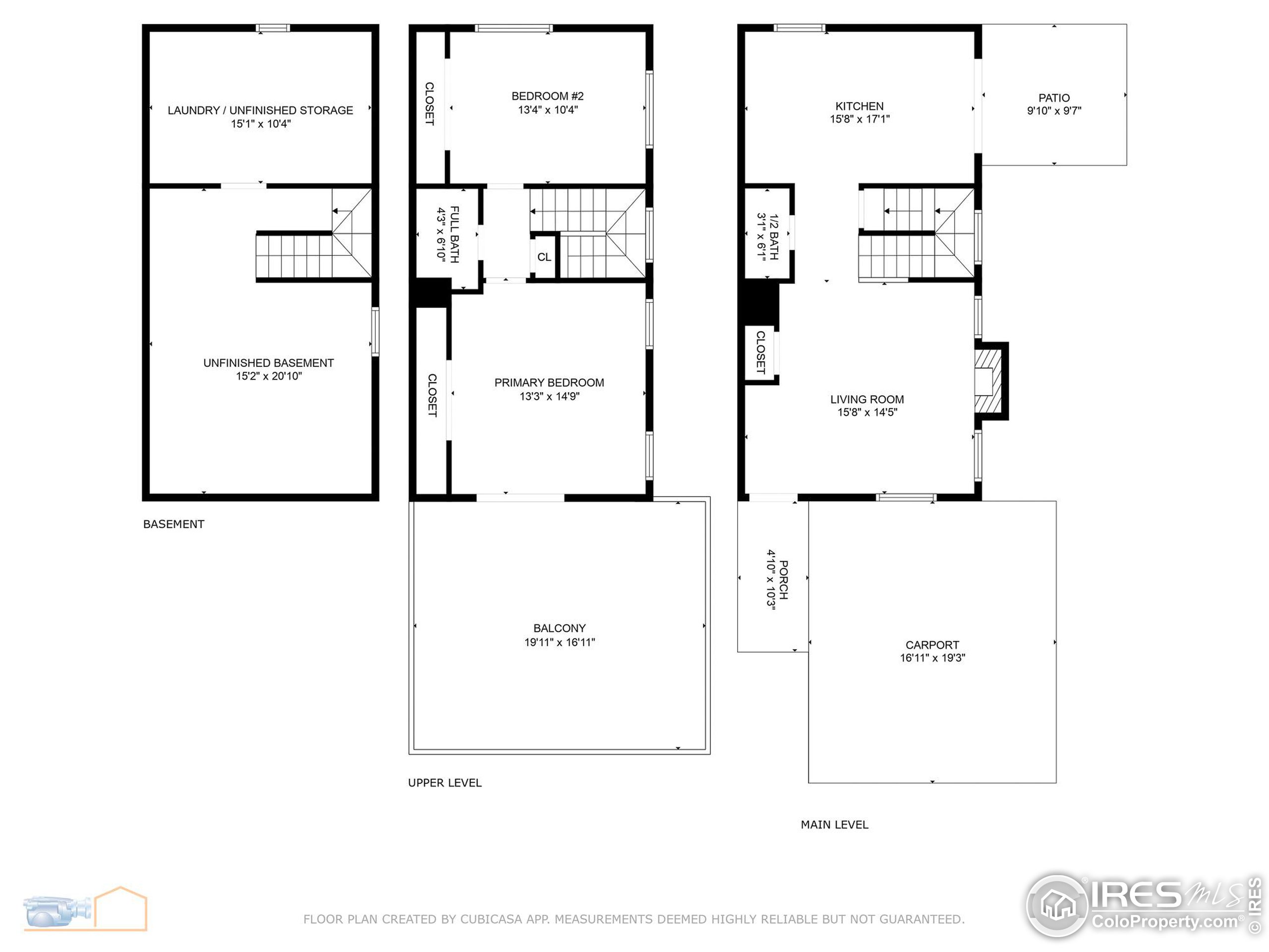
Perfect place to start your new home. Located in Gunbarrel (unincorporated Boulder County). This Townhome offers a main level living room with fireplace, 1/2 bath and kitchen. New LVT floors in all areas, kitchen is equipped with a stainless steel range refrigerator and dishwasher. The upper level has two bedrooms and a full bath. New carpet in bedrooms. The master bedroom has direct access it a recently rebuilt, by permit, 378 sq.ft. Trex deck over carport, with mountain views during winter months. The 2nd bedroom also has foothills views. Recent improvements include new carpet & LVT flooring, dishwasher, light fixtures, interior paint and blinds on windows. The exterior was painted 2023. The basement is unfinished, with washer dryer hookups and potential for additional living space. Lot abuts Boulder County Open Space and is near trails that lead to beautiful Twin Lakes. Easy access to Diagonal Highway, transportation, schools, King Soopers City Market and other services.

Overview

Property Status
Sold
Lot Size
2,633 Sq.Ft.
MLS ID
1019556
Property Type
Residential
Year Built
1980

Features & Amenities

Total Area
1,024 Sq.Ft.
Neighborhood
Gunbarrel
View Description
Foothills View
Stories
2
Garage Spaces
2.0
Water Source
City Water, City of Boulder
Utilites
Natural Gas Available, Electricity Available
Roof
Composition
Lot Features
Abuts Public Open Space, Unincorporated
Heat Type
Forced Air
Laundry Room
Washer/Dryer Hookups
Fireplace
Living Room
Appliances
Electric Range/Oven, Dishwasher, Refrigerator, Washer, Dryer, Disposal
Other Interior Features
Eat-in Kitchen
Sewer
City Sewer
Disability Features
Near Bus, Low Carpet
HOA Amenities
Common Amenities, Trash, Snow Removal, Management, Utilities
Elementary School
Heatherwood
Middle School
Platt
High School
Boulder
School District
Boulder Valley Dist RE2
Sales Price
$475,000
Real Estate Tax
$2,519/yr
HOA
$90/mo
Zoning
SR

Downloads

4635 Portside Way

Schedule a Tour

I would love to help you see this beautiful home! As a full-service broker associate, I can help you tour. Please submit an offer, and answer questions about the buying process.

Enter a valid email

Thank you

for your interest in 4635 Portside Way, Boulder, CO 80301

back to page
4635 Portside Way
Navigate
Gunbarrel

Explore Gunbarrel

read more
4635 Portside Way
explore in 3d

I'm Interested In

4635 Portside Way

or
  • CallWhitney DePalma

    License #10010278

    (404) 840-5526
  • Property Highlight

    Notable Sales

    • 3835 Norwood Ct Sold

      $2,180,000

      3835 Norwood Ct, Boulder, CO 80304

      • 4 Beds
      • 5 Baths
      • 4,698 Sq.Ft.
    • 2130 Folsom St Sold

      $1,950,000

      2130 Folsom St, Boulder, CO 80302

      • 3 Beds
      • 4 Baths
      • 2,071 Sq.Ft.
    • 1416 Lodge Ln Sold

      $1,600,000

      1416 Lodge Ln, Boulder, CO 80303

      • 5 Beds
      • 4 Baths
      • 3,714 Sq.Ft.
    • 1750 Deer Trail Rd Sold

      $1,150,000

      1750 Deer Trail Rd, Boulder, CO 80302

      • 4 Beds
      • 2 Baths
      • 3,158 Sq.Ft.
    • 3613 Silverton St Sold

      $1,130,000

      3613 Silverton St, Boulder, CO 80301

      • 4 Beds
      • 3 Baths
      • 3,946 Sq.Ft.
    • 825 Inca Pkwy Sold

      $949,000

      825 Inca Pkwy, Boulder, CO 80303

      • 5 Beds
      • 3 Baths
      • 1,710 Sq.Ft.
    • 125 S 35th St Boulder Sold

      $810,000

      125 S 35th St, Boulder, CO 80305

      • 3 Beds
      • 1 Bath
      • 1,040 Sq.Ft.
    • 4635 Portside Way Sold

      $475,000

      4635 Portside Way, Boulder, CO 80301

      • 2 Beds
      • 2 Baths
      • 1,536 Sq.Ft.
    View All

    Follow Us On Instagram